
Situated above the Flathead River in Columbia Falls, this project sought to balance the desire for ample daylighting and views towards the mountains with the need for privacy from adjacent homes. A large kitchen and living room provides a communal gathering space, while the second floor bedroom suite and living space above the garage serve as a refuge that compliments the homeowners lifestyle.
3D Renderings




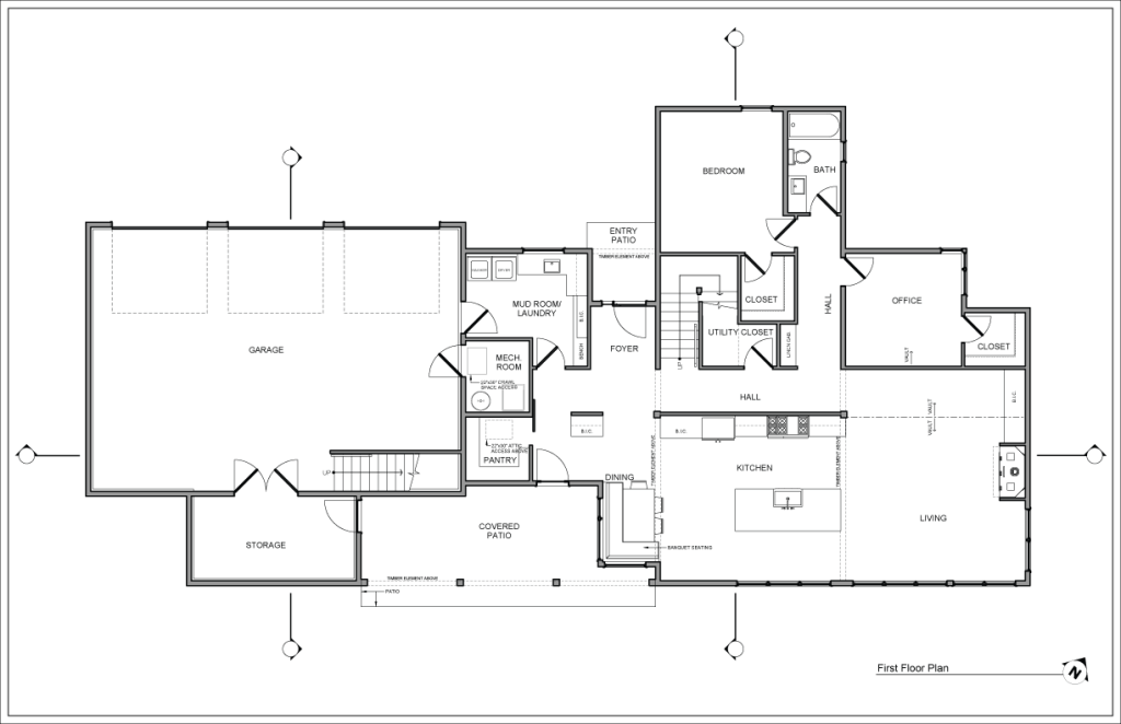
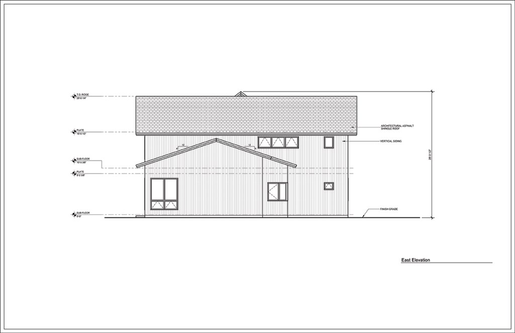
Design Drawings









