
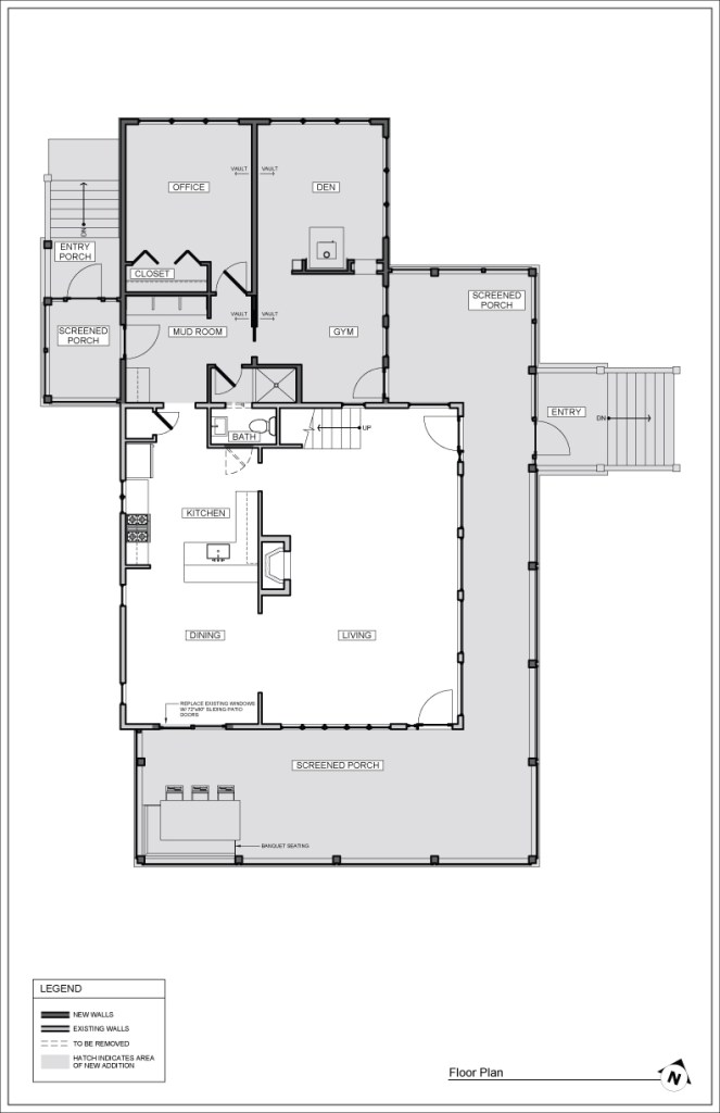
Located on an island off the coast of Maine, the original house was transported by barge to its new site. The new program includes a wrap around screened porch and additional living space on the north side of the home.
3D Renderings



Design Drawings






Located on an island off the coast of Maine, the original house was transported by barge to its new site. The new program includes a wrap around screened porch and additional living space on the north side of the home.







